Vistas:184 Autor:Editor del sitio Hora de publicación: 2020-01-08 Origen:Sitio
¿Cómo determinar el tamaño del agujero del proceso?
El tamaño del orificio del proceso de chapa depende de la posición del orificio del proceso. Si el orificio del proceso está en la intersección de dos líneas, el orificio del proceso es 2 veces más grueso. El espesor mínimo no puede ser inferior a 1,5 veces el espesor de la chapa. Al doblar placas gruesas de chapa, teniendo en cuenta el filete de doblado, el orificio del proceso debe agrandarse adecuadamente.
Las desventajas de este orificio de proceso: después del doblado, especialmente para la placa gruesa, el ángulo de doblado del orificio de proceso hecho de esta manera es muy deficiente en material, y no es hermoso y fácil de soldar. En este momento, es necesario mejorar el método de fabricación del agujero del proceso.
Método de optimización del agujero del proceso:
Se puede determinar de acuerdo con la situación de envoltura del borde de flexión, considerando evitar el espesor de la placa y el filete de flexión para determinar el orificio del proceso de la chapa. Vea la siguiente ilustración:

La imagen de arriba muestra: el grosor del material de chapa es de 3 mm, la altura de flexión de los cuatro lados es de 15 mm, una caja de chapa cuadrada.
Plan de mejora del hoyo de arte:
Mejora del método de supresión: existen dos métodos de supresión de chapa, supresión por CNC y supresión por corte con láser. CNC en blanco, los agujeros del proceso de doblado son generalmente agujeros redondos, agujeros cuadrados u agujeros largos están limitados por el molde, difícil de lograr. La imagen de arriba es de chapa de 3 mm, por lo que se utiliza corte por láser.
Forma mejorada del orificio del proceso: si el orificio del proceso se convierte en una forma larga, puede evitar problemas estéticos después de la flexión.
Cómo determinar el tamaño del orificio rectangular del proceso
El ancho generalmente se establece en 1 mm, lo que no afecta la apariencia, ni afecta la liberación de la deformación por flexión de la chapa. Método de cálculo de dimensión de profundidad: 10 mm = altura de flexión-3 mm factor de flexión 5; 4 mm = espesor de material de chapa +1.
Efecto de mejora del agujero del proceso:
Después de doblar y formar la pieza de chapa, solo hay una ranura estrecha de 1 mm. Ver representaciones en 3D:

¿Por qué evitar doblarse y tirar?
Daño de tirar del material:
1.Afecta el tamaño de flexión. Durante el proceso de extracción, se necesita mucha fuerza para rasgar por la fuerza el espesor de la chapa. La dirección de la fuerza es incierta, lo que hará que la pieza de trabajo se mueva y provoque un desplazamiento dimensional.
2.El molde de doblado es fácil de dañar. Como se mencionó anteriormente, habrá mucha fuerza en las esquinas afiladas, lo que excederá la capacidad de carga del molde, lo que provocará el fenómeno de astillado y daños.
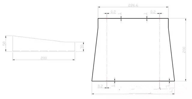
Estándar para el uso de orificios de proceso de doblado y posicionamiento
Tamaño y forma del orificio del proceso:
1 El orificio del proceso de posicionamiento de flexión de placa delgada, el tamaño de la abertura es 1X0.2mm raíz R 0.1mm, adecuado para espesor de placa ≤3mm.

2 Agujero de proceso de posicionamiento de plegado de placa gruesa, el tamaño de apertura es de raíz de 1X0.4 mm R 0.2 mm, adecuado para grosores de placa> 3 mm-6 mm

Rango de uso:
1 Tipo de ángulo: el ángulo de doblado no es de 90 grados, y todos los agujeros de posicionamiento se abren en la posición de doblado, incluido el doblado de bordes plegados;

2.Tipo de acoplamiento: piezas de apariencia o piezas de tope con requisitos de alta precisión, todos los agujeros de flexión se abren con agujeros de posicionamiento;

3.Tipo de tamaño grande: si el tamaño de flexión es superior a 200 mm, se abren todos los agujeros de posicionamiento

4.Tipo de complejo múltiple de doblez continuo: partes múltiples complejas de doblez continuo, comenzando desde el tercer doblez para agregar agujeros de posicionamiento;

5.Tipo de secuencia de plegado: para piezas que no pueden procesarse de acuerdo con la secuencia de plegado normal, todas las posiciones de plegado están provistas de agujeros de posicionamiento;

6.Tipo de doblado repetido: debido a la limitación del equipo de doblado, las piezas que deben doblarse repetidamente tienen todos los orificios de posicionamiento en la posición de doblado;

7.No puede apoyarse contra el tope: no puede apoyarse contra las piezas del tipo de tope, posición de flexión todos los agujeros de posicionamiento abiertos;

8.Tipo de riel de guía: todas las partes del tipo de riel de guía tienen orificios de posicionamiento en las posiciones de flexión;

9.Agujeros de posicionamiento de arco: posicionar agujeros en los puntos de inicio del arco en ambos extremos del arco;

10.Tipo de placa de extracción: todos los orificios de posicionamiento se abren en la posición de flexión de las piezas de la placa de extracción.

11.Tipo de borde plegable: los orificios de posicionamiento se abren en la posición del borde de las partes de borde; Los agujeros de posicionamiento se abren por la posición de tamaño donde el borde continúa doblando.
